Ritorno alla merce

Appartamenti Da 4.5 locali, Bulle, Fribourg

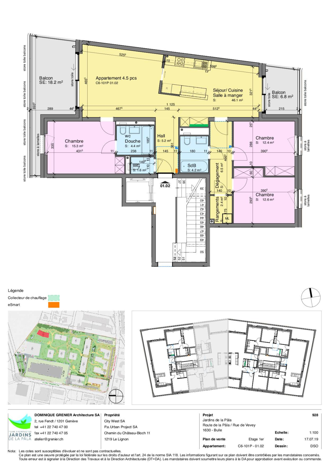
"Alpage" C6-101 - Lotto 01.02 - Appartamento di 4,5 locali al 1° piano

Réf 42986

4.5 locali

3 Camere

2 Bagni

130

Venite a scoprire l'ultimo edificio di una magnifica promozione con appartamenti PPE - quartiere Pâla a Bulle - L'Alpage è un edificio di lusso in uno splendido parco alberato.

Le tipologie variano a seconda dei vostri desideri e bisogni, da 2,5 locali a 5,5 locali su 5 piani, offrendovi una splendida vista sulla capitale della Gruyère.

La composizione degli appartamenti vi garantirà ampi spazi con superfici abitative che vanno dai 50 ai 161 mq. Godetevi terrazze molto piacevoli.

La costruzione sarà di qualità superiore con materiali di alto livello e un'architettura moderna.

Il contesto esterno verdeggiante sarà perfetto per chi ama il verde pur apprezzando la comodità della città con tutte le comodità. Consegna ultimo trimestre 2020.

Caratteristiche della proprietà

Tipo :

Appartamenti

Piano :

1

Camere :

3

Bagni :

2

Balcone(i) :

1 (25 m²)

Parcheggi :

Superficie abitabile :

130.1 m²

Disponibilità :

Sur demande

Esposizione :

Ovest

Posizione della proprietà

ALTRE PROPRIETÀ NELLE VICINANZE

Proprietà di 8 locali nel cuore della Gruyère

Condividi

Casa/villa

LES SCIERNES-D'ALBEUVE

CHF 2'200'000.-

8.0 locali

6 Camere

438 mq

Un viaggio indietro nel tempo nel cuore di una tenuta storica!
Objet rare

Condividi

Casa/villa

MONTAGNY-LA-VILLE

Prezzo su richiesta

16.0 locali

14 Camere

691 m²

Appartamento di 3.5 locali a La Verrerie, Haute-Veveyse
Exclusivité

Giro a 360°

Condividi

Appartamenti

LA VERRERIE

CHF 649'000.-

3.5 locali

2 Camere

106 mq

Scopri la rivista BARNES