Ritorno alla merce

Appartamenti Da 4.5 locali, Bulle, Fribourg

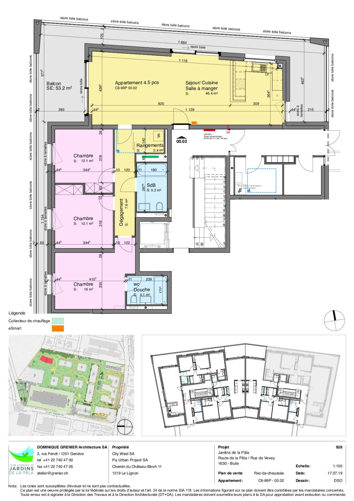
LES JARDINS DE LA PÂLA - "Alapge" C6-99 - Lotto 00.02 - Appartamento di 4,5 locali al piano terra

Réf 42993

4.5 locali

2 Camere

2 Bagni

124

BARNES SUISSE SA vi offre:

Appartamenti PPE in vendita da 2,5 locali a 5,5 locali da CHF 335'000.-. Per maggiori informazioni e per scoprire quali lotti sono ancora disponibili, non esitate a contattarci.

“Il tuo benessere è al centro”

Il quartiere Pâla a Bulle è nella fase finale di costruzione e i primi appartamenti sono già stati consegnati. Tutti beneficiano di:

- Domotica eSMART®, fibra ad alta velocità
- Riscaldamento geotermico
- Ampio balcone
- Grandi vetrate, luminosità
- Finiture di qualità

Architettura moderna, mobilità dolce, giardini, calma e tranquillità faranno di questo prossimo quartiere il nuovo centro di Bulle.

Caratteristiche della proprietà

Tipo :

Appartamenti

Camere :

4.5

Camere :

2

Bagni :

2

Balcone(i) :

1 (52 m²)

Parcheggi :

Superficie abitabile :

124 m²

Disponibilità :

Sur demande

Esposizione :

Nord-Ovest

Posizione della proprietà

ALTRE PROPRIETÀ NELLE VICINANZE

Proprietà di 8 locali nel cuore della Gruyère

Condividi

Casa/villa

LES SCIERNES-D'ALBEUVE

CHF 2'200'000.-

8.0 locali

6 Camere

438 mq

Un viaggio indietro nel tempo nel cuore di una tenuta storica!
Objet rare

Condividi

Casa/villa

MONTAGNY-LA-VILLE

Prezzo su richiesta

16.0 locali

14 Camere

691 m²

Appartamento di 3.5 locali a La Verrerie, Haute-Veveyse
Exclusivité

Giro a 360°

Condividi

Appartamenti

LA VERRERIE

CHF 649'000.-

3.5 locali

2 Camere

106 mq

Scopri la rivista BARNES