Ritorno alla merce

Casa/villa Da 5.5 locali, Gibloux, Fribourg

Villa E5 Promozione Les Prés de Farvagny

Réf 43150

5.5 locali

4 Camere

2 Bagni

156

Farvagny è un affascinante villaggio verde, parte del comune di Gibloux situato nel distretto di Sarine.

Grazie alla sua eccellente posizione geografica, il comune di Gibloux offre un quadro favorevole allo sviluppo industriale preservando un sito naturale favorendo lo sviluppo della sua popolazione e combinando

la calma e il fascino della campagna. Vicino alla città di Friburgo e alle sue autostrade. Infatti, il villaggio è a soli 25 minuti da Berna e

A 45 minuti da Losanna.

Questa nuova promozione delizierà le famiglie, le coppie o chiunque desideri avere una buona qualità di vita.

Situata in una regione idilliaca, la città di Gibloux è un ottimo punto di partenza per praticare numerose attività ricreative. Grazie ai suoi istituti di accoglienza, i bambini hanno il privilegio di poter seguire l'intero percorso scolastico dell'obbligo (dal livello infantile al ciclo di orientamento) all'interno dell'ambito scolastico del Comune. Il villaggio è servito dall'autobus del trasporto pubblico friborghese (TPF).

Farvagny offre anche tutti i servizi necessari come negozi locali, ristoranti, banche, ecc. Impianti sportivi, sentieri forestali, sentieri escursionistici, una biblioteca, permettono a tutti di occupare il proprio tempo libero. Più di 20 aziende animano la vita culturale e sportiva della città.

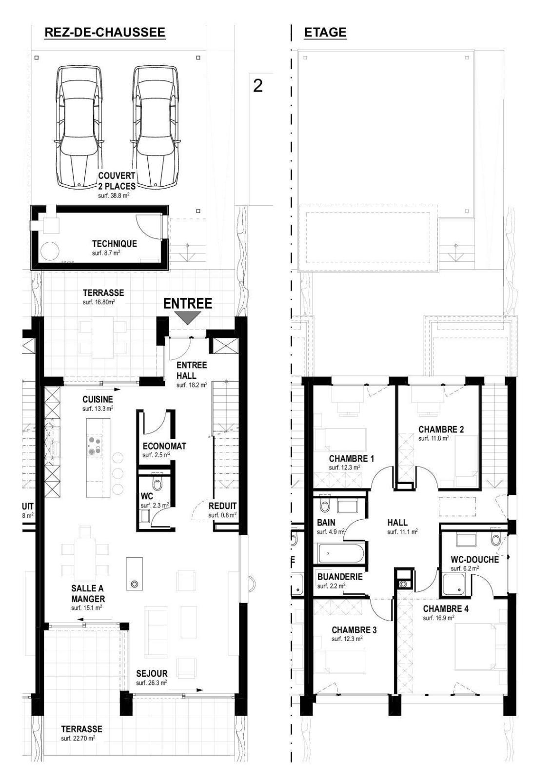
Ognuna delle ville sarà unica grazie alle finiture che sono a discrezione degli acquirenti; tuttavia, la distribuzione delle parti è simile in ciascun lotto.

Gli ambienti ampi e luminosi vi sedurranno, l'atmosfera calda e accogliente del futuro comprensorio delle ville vi farà sentire come a casa, i due splendidi terrazzi vi permetteranno di godere di un sole ottimale secondo i vostri desideri, ed infine, un posto auto coperto 2 posti completare ciascuna delle ville.

Caratteristiche della proprietà

Tipo :

Casa/villa

Camere :

5.5

Camere :

4

Bagni :

2

Superficie abitabile :

156.2 m²

Superficie del jardino :

884 m²

Disponibilità :

Sur demande

Posizione della proprietà

ALTRE PROPRIETÀ NELLE VICINANZE

Proprietà di 8 locali nel cuore della Gruyère

Condividi

Casa/villa

LES SCIERNES-D'ALBEUVE

CHF 2'200'000.-

8.0 locali

6 Camere

438 mq

Un viaggio indietro nel tempo nel cuore di una tenuta storica!
Objet rare

Condividi

Casa/villa

MONTAGNY-LA-VILLE

Prezzo su richiesta

16.0 locali

14 Camere

691 m²

Appartamento di 3.5 locali a La Verrerie, Haute-Veveyse
Exclusivité

Giro a 360°

Condividi

Appartamenti

LA VERRERIE

CHF 649'000.-

3.5 locali

2 Camere

106 mq

Scopri la rivista BARNES