Ritorno alla merce

Appartamenti Da 3.5 locali, Epalinges, Vaud

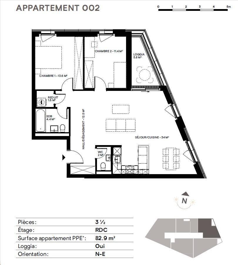
3,5 vani posti al piano superiore - Lotto N°2

Réf 52236

3.5 locali

2 Camere

1 Bagno

80

Situata in un ambiente verdeggiante, a pochi minuti dall'Ecole Hôtelière de Lausanne, dai trasporti pubblici o anche dai percorsi autostradali, la promozione “Grand Chemin” soddisferà tutte le vostre aspettative.

Composto da due edifici che si fronteggiano ma si completano a vicenda, il complesso riunisce, da un lato, eleganti appartamenti che offrono una visione chiara ai futuri occupanti e, dall'altro, ospita attività commerciali.

Parcheggi interrati per auto, biciclette e passeggini, spazi comuni con giardino, cortile privato e parco giochi sono solo alcuni degli asset di questi edifici attualmente in costruzione.

L'appartamento proposto, esposto a Nord-Est al piano terra rialzato, è così disposto:

- Ingresso con armadi a muro
- Ampio soggiorno con zona pranzo
- Cucina attrezzata aperta
- Camera da letto n. 1
- Camera da letto n. 2
- Bagno/WC
- WC per i visitatori
- Ridotto con spazio per colonna di lavaggio
- Balcone
La consegna del vostro futuro alloggio, di cui è possibile la scelta delle finiture, è prevista per l'autunno 2019. In aggiunta al prezzo di vendita è disponibile un posto auto coperto (CHF 40.000.-). Non esitate più e trovate tutto i lotti disponibili su https://www.grand-chemin.ch/gerofinance-dunand

Caratteristiche della proprietà

Tipo :

Appartamenti

Camere :

3.5

Piano :

Piano terra rialzato

Camere :

2

Bagni :

1

Parcheggi :

Superficie abitabile :

79.5 m²

Superficie appesantita :

82.4 m²

Disponibilità :

Sur demande

Esposizione :

Nord-Est

Posizione della proprietà

ALTRE PROPRIETÀ NELLE VICINANZE

Residenza eccezionale nel cuore dei bei quartieri di Losanna
Exclusivité

Condividi

video

Casa/villa

LAUSANNE • Prestige

CHF 7'900'000.-

11.5 locali

6 Camere

450 mq

Immobile d'architetto completamente ristrutturato

Condividi

Casa/villa

LA CROIX (LUTRY) • Prestige

CHF 6'800'000.-

11.0 locali

8 Camere

500 mq

Villa di 340 m² immersa nella natura.
Exclusivité

Condividi

Casa/villa

SAVIGNY

CHF 3'300'000.-

9.5 locali

6 Camere

340 mq

Scopri la rivista BARNES