Non esitate oltre e scoprite tutti i lotti disponibili su
https://www.grand-chemin.ch/gerofinance-dunand
Situata in un ambiente verdeggiante, a pochi minuti dall'Ecole Hôtelière de Lausanne, dai trasporti pubblici o anche dai percorsi autostradali, la promozione “Grand Chemin” soddisferà tutte le vostre aspettative.
Composto da due edifici che si fronteggiano ma si completano a vicenda, il complesso riunisce, da un lato, eleganti appartamenti che offrono una visione chiara ai futuri occupanti e, dall'altro, ospita attività commerciali.
Parcheggi interrati per auto, biciclette e passeggini, spazi comuni con giardino, cortile privato e parco giochi sono solo alcuni degli asset di questi edifici attualmente in costruzione.
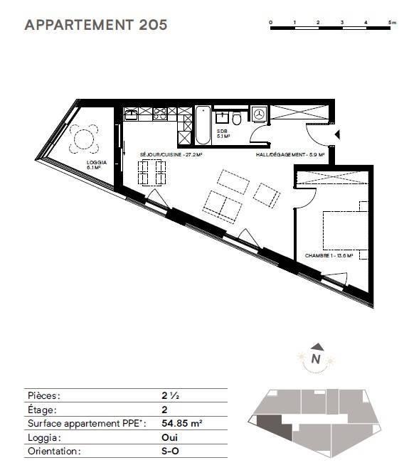
L'appartamento proposto, esposto a Sud-Ovest al 2° piano, è così disposto:
- Ingresso con armadi a muro
- Soggiorno con zona pranzo
- Cucina attrezzata aperta
- Camera da letto
- Bagno/WC
- Balcone
La consegna del vostro futuro alloggio, di cui è possibile la scelta delle finiture, è prevista per l'autunno 2019. In aggiunta al prezzo di vendita (CHF 40.000.-) è disponibile un posto auto interno.