Ritorno alla merce

Appartamenti Da 2.5 locali, Epalinges, Vaud

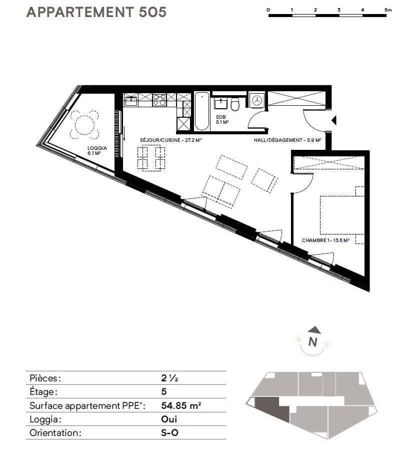
2,5 locali sito al 5° Piano - Lotto N°505

Réf 52294

2.5 locali

1 Camera da letto

1 Bagno

52

Non esitate oltre e scoprite tutti i lotti disponibili su

https://www.grand-chemin.ch/gerofinance-dunand
Situata in un ambiente verdeggiante, a pochi minuti dall'Ecole Hôtelière de Lausanne, dai trasporti pubblici o anche dai percorsi autostradali, la promozione “Grand Chemin” soddisferà tutte le vostre aspettative.
Composto da due edifici che si fronteggiano ma si completano a vicenda, il complesso riunisce, da un lato, eleganti appartamenti che offrono una visione chiara ai futuri occupanti e, dall'altro, ospita attività commerciali.

Parcheggi interrati per auto, biciclette e passeggini, spazi comuni con giardino, cortile privato e parco giochi sono solo alcuni degli asset di questi edifici attualmente in costruzione.

L'appartamento proposto, esposto a Sud-Ovest al 5° piano, è così disposto:

- Ingresso con armadi a muro
- Soggiorno con zona pranzo
- Cucina attrezzata aperta
- Camera da letto
- Bagno/WC con spazio per colonna lavaggio
- Balcone
La consegna del vostro futuro alloggio, di cui è possibile la scelta delle finiture, è prevista per l'autunno 2019. In aggiunta al prezzo di vendita (CHF 40.000.-) è disponibile un posto auto interno.

Caratteristiche della proprietà

Tipo :

Appartamenti

Camere :

2.5

Piano :

5

Camere :

1

Bagni :

1

Parcheggi :

Superficie abitabile :

51.8 m²

Superficie appesantita :

54.8 m²

Disponibilità :

Sur demande

Esposizione :

Sud Ovest

Posizione della proprietà

ALTRE PROPRIETÀ NELLE VICINANZE

Residenza eccezionale nel cuore dei bei quartieri di Losanna
Exclusivité

Condividi

video

Casa/villa

LAUSANNE • Prestige

CHF 7'900'000.-

11.5 locali

6 Camere

450 mq

Immobile d'architetto completamente ristrutturato

Condividi

Casa/villa

LA CROIX (LUTRY) • Prestige

CHF 6'800'000.-

11.0 locali

8 Camere

500 mq

Villa di 340 m² immersa nella natura.
Exclusivité

Condividi

Casa/villa

SAVIGNY

CHF 3'300'000.-

9.5 locali

6 Camere

340 mq

Scopri la rivista BARNES