Ritorno alla merce

Appartamenti Da 3.5 locali, Epalinges, Vaud

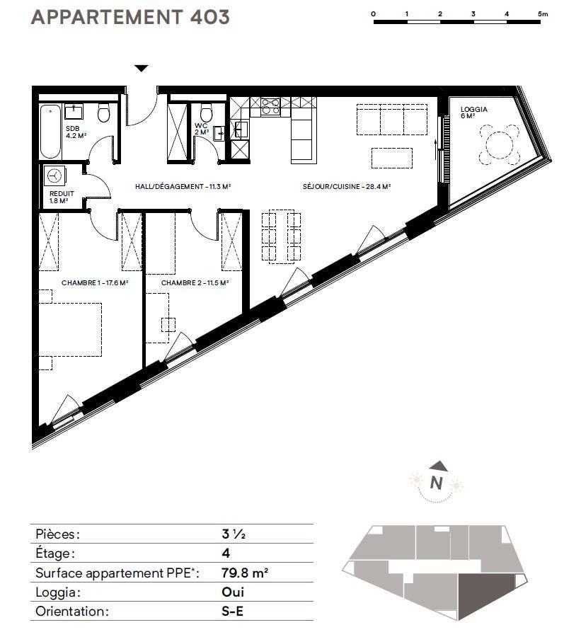
3,5 vani sito 4° Piano - Lotto N°403

Réf 52309

3.5 locali

2 Camere

1 Bagno

77

Non esitate oltre e scoprite tutti i lotti disponibili su

https://www.grand-chemin.ch/gerofinance-dunand
Situata in un ambiente verdeggiante, a pochi minuti dall'Ecole Hôtelière de Lausanne, dai trasporti pubblici o anche dai percorsi autostradali, la promozione “Grand Chemin” soddisferà tutte le vostre aspettative.
Composto da due edifici uno di fronte all'altro ma complementari tra loro, il complesso riunisce, da un lato, eleganti appartamenti che offrono una visione chiara ai futuri occupanti e, dall'altro, ospita attività commerciali.

Parcheggi interrati per auto, biciclette e passeggini, spazi comuni con giardino, cortile privato e parco giochi sono solo alcuni degli asset di questi edifici attualmente in costruzione.

L'appartamento proposto, esposto a Sud-Est al 4° piano, è così disposto:

- Ingresso con armadi a muro
- Ampio soggiorno con zona pranzo
- Cucina attrezzata aperta
- Camera da letto n. 1
- Camera da letto n. 2
- Bagno/WC con spazio per colonna lavaggio
- WC per i visitatori
- Balcone
La consegna del vostro futuro alloggio, di cui è possibile la scelta delle finiture, è prevista per l'autunno 2019. In aggiunta al prezzo di vendita (CHF 40.000.-) è disponibile un posto auto interno.

Caratteristiche della proprietà

Tipo :

Appartamenti

Camere :

3.5

Piano :

4

Camere :

2

Bagni :

1

Parcheggi :

Superficie abitabile :

76.8 m²

Superficie appesantita :

79.8 m²

Disponibilità :

Sur demande

Esposizione :

Sud-Est

Posizione della proprietà

ALTRE PROPRIETÀ NELLE VICINANZE

Residenza eccezionale nel cuore dei bei quartieri di Losanna
Exclusivité

Condividi

video

Casa/villa

LAUSANNE • Prestige

CHF 7'900'000.-

11.5 locali

6 Camere

450 mq

Immobile d'architetto completamente ristrutturato

Condividi

Casa/villa

LA CROIX (LUTRY) • Prestige

CHF 6'800'000.-

11.0 locali

8 Camere

500 mq

Villa di 340 m² immersa nella natura.
Exclusivité

Condividi

Casa/villa

SAVIGNY

CHF 3'300'000.-

9.5 locali

6 Camere

340 mq

Scopri la rivista BARNES