Ritorno alla merce

Appartamenti Da 4.5 locali, Chavannes-près-Renens, Vaud

Ultimi 4.5 locali in attico - Visita virtuale possibile!

Réf 52398

4.5 locali

3 Camere

2 Bagni

123.07 m²

Trova tutti i lotti disponibili su www.auxcedres.ch/barnes - Non esitate a contattarci per un tour virtuale gratuito!

Situata vicino ai servizi abituali, a pochi minuti dall'UNIL, dall'EPFL, dall'ECAL, dai trasporti pubblici e dalle autostrade, la promozione “Les Cèdres” soddisferà tutte le vostre aspettative.
Composta da due edifici certificati MINERGIE venduti come DPI, in una nuova zona residenziale in costruzione, la promozione è composta da eleganti appartamenti di varia tipologia; questo in un ambiente contemporaneo che porta ad un nuovo adattamento della progettazione della città.
Questo quartiere misto, fatto di case e attività commerciali, offrirà ai suoi residenti una qualità di vita senza eguali, in particolare favorendo la mobilità dolce. Spazi abitativi comuni come un atrio centrale, un parco giochi o anche un parcheggio sotterraneo sono solo alcune delle risorse di questi edifici attualmente in costruzione.
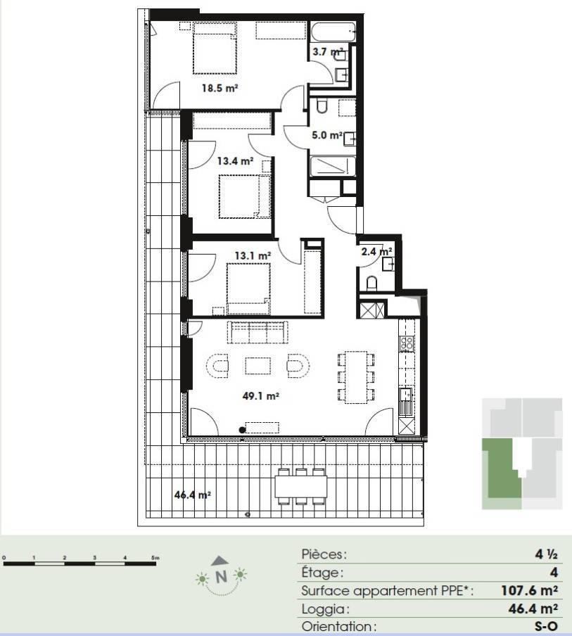
L'appartamento proposto, esposto a Sud-Ovest al 4° piano, è così disposto:
- Ingresso con armadi a muro - WC ospiti con lavandino - 2 camere da letto
- Bagno con WC - Camera matrimoniale con bagno
- Cucina aperta e attrezzata - Ampio soggiorno/sala da pranzo
- Terrazza di 46 mq
La consegna della tua futura casa è prevista per novembre 2020.

In aggiunta al prezzo di vendita è disponibile un posto auto coperto (CHF 35.000.-).

Caratteristiche della proprietà

Tipo :

Appartamenti

Camere :

4.5

Piano :

4

Camere :

3

Bagni :

2

Terrazze :

Parcheggi :

Superficie abitabile :

107 m²

Superficie appesantita :

123.1 m²

Disponibilità :

Sur demande

Esposizione :

Sud Ovest

Posizione della proprietà

ALTRE PROPRIETÀ NELLE VICINANZE

Residenza eccezionale nel cuore dei bei quartieri di Losanna
Exclusivité

Condividi

video

Casa/villa

LAUSANNE • Prestige

CHF 7'900'000.-

11.5 locali

6 Camere

450 mq

Immobile d'architetto completamente ristrutturato

Condividi

Casa/villa

LA CROIX (LUTRY) • Prestige

CHF 6'800'000.-

11.0 locali

8 Camere

500 mq

Villa di 340 m² immersa nella natura.
Exclusivité

Condividi

Casa/villa

SAVIGNY

CHF 3'300'000.-

9.5 locali

6 Camere

340 mq

Scopri la rivista BARNES