Ritorno alla merce

Appartamenti Da 2.5 locali, Cossonay, Vaud

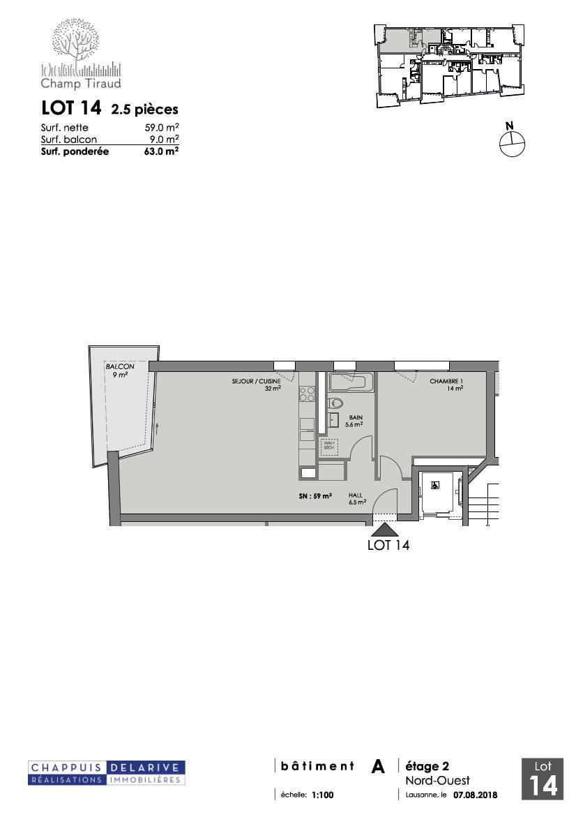
Appartamento di 2,5 locali al 2° piano, Lotto A14

Réf 52888

2.5 locali

1 Camera da letto

1 Bagno

59

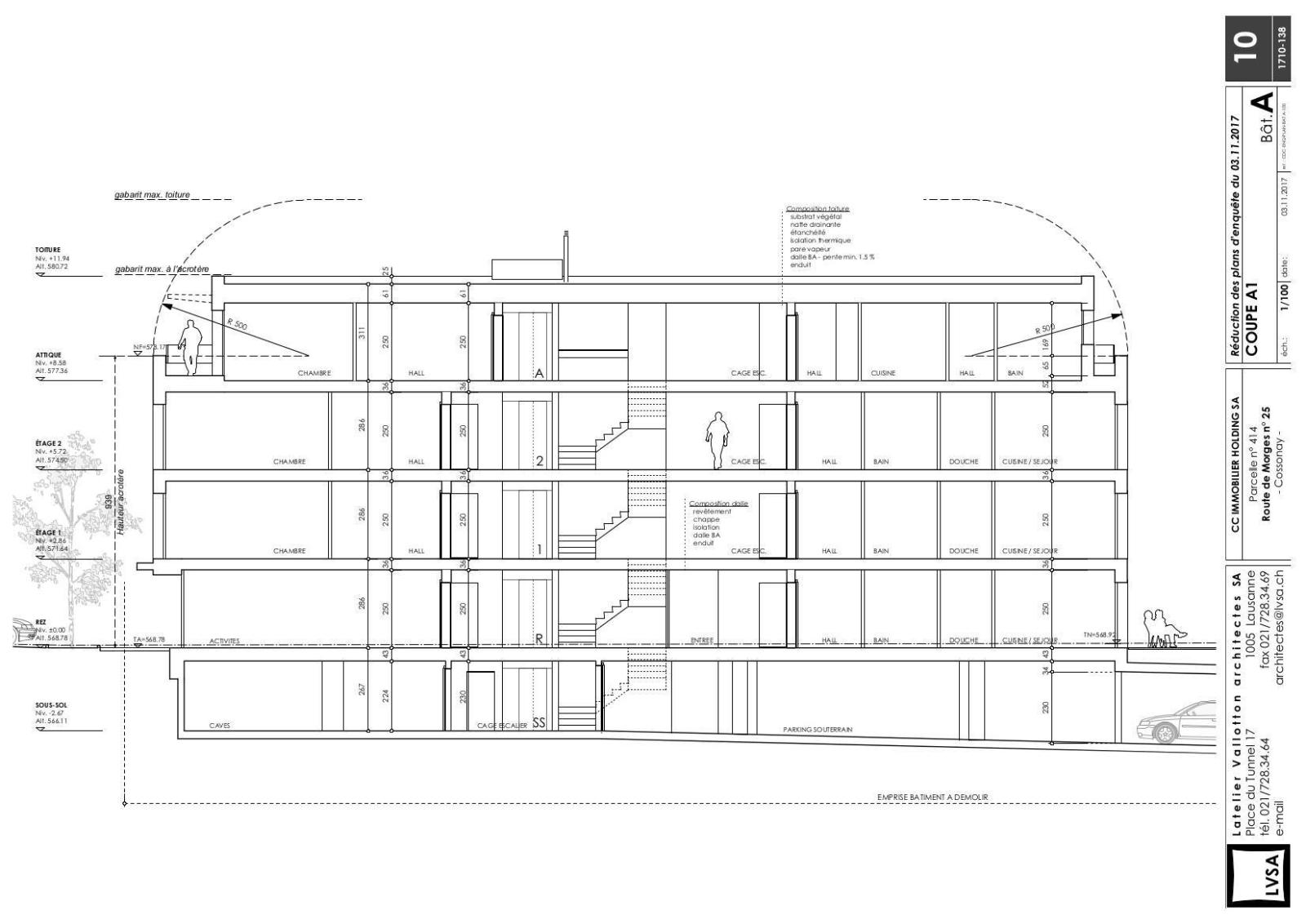
Il terreno, situato vicino al centro cittadino, è composto da due zone, una mista a bassa densità (B) e una a media densità (A). Di conseguenza, il progetto presenta due edifici differenziati, ciascuno dei quali è adattato a ciascuna zona, quello più lontano dalla strada, nella zona mista B, offre esclusivamente alloggi, mentre l'altro situato nella zona mista A offre, oltre agli alloggi , due aree destinate alle attività.

Il progetto tiene conto degli orientamenti, degli spazi visivi e dei vincoli del luogo per definire le diverse tipologie, che vanno da 2,5 a 4,5 locali. Tutti gli appartamenti dispongono di balconi prevalentemente esposti a sud. Attici con ampi terrazzi coronano ciascuno dei due corpi di fabbrica.
Il parcheggio interrato è accessibile direttamente dal piano interrato dell'edificio A e tramite scala esterna per l'edificio B con ulteriori posti auto esterni.

Aree verdi con alberi e un parco giochi animano lo spazio tra i due edifici.

I tetti verdi piani integrano pannelli fotovoltaici e solari termici per garantire la produzione di elettricità, calore e acqua calda sanitaria che rientra in un approccio di energia rinnovabile. La scelta dei serramenti e dei materiali delle facciate agisce passivamente in questa direzione.

Le grandi vetrate nei soggiorni e la scelta delle ringhiere dei balconi conferiscono una certa trasparenza e garantiscono così una buona luce.

L'architettura contemporanea dell'insieme è sobria con scelte cromatiche contrastanti tra i solai e i solai. La scelta dei materiali, come il cemento pulito, per i balconi e parte delle superfici delle attività si abbina armoniosamente alle ringhiere in acciaio inossidabile e alla trama delle facciate in intonaco fine.

Particolare cura è stata posta nella progettazione di questo set per coniugare estetica e funzionalità.

Caratteristiche della proprietà

Tipo :

Appartamenti

Camere :

2.5

Piano :

2

Camere :

1

Bagni :

1

Parcheggi :

Superficie abitabile :

59 m²

Superficie appesantita :

63 m²

Disponibilità :

Sur demande

Esposizione :

Ovest

Posizione della proprietà

ALTRE PROPRIETÀ NELLE VICINANZE

Casa padronale del XV secolo situata su 27.000 m²
Campagne

Condividi

Casa/villa

SÉVERY • Prestige

Prezzo su richiesta

13.0 locali

7 Camere

1300 m²

Appartamento atipico dai volumi generosi

Giro a 360°

Condividi

Appartamenti

MORGES

CHF 965'000.-

5.5 locali

2 Camere

334 mq

Magnifica residenza del XIX secolo ristrutturata

Condividi

Casa/villa

MONTRICHER

CHF 4'850'000.-

15.0 locali

4 Camere

800 mq

Scopri la rivista BARNES