Ritorno alla merce

Appartamenti Da 4.5 locali, Cossonay, Vaud

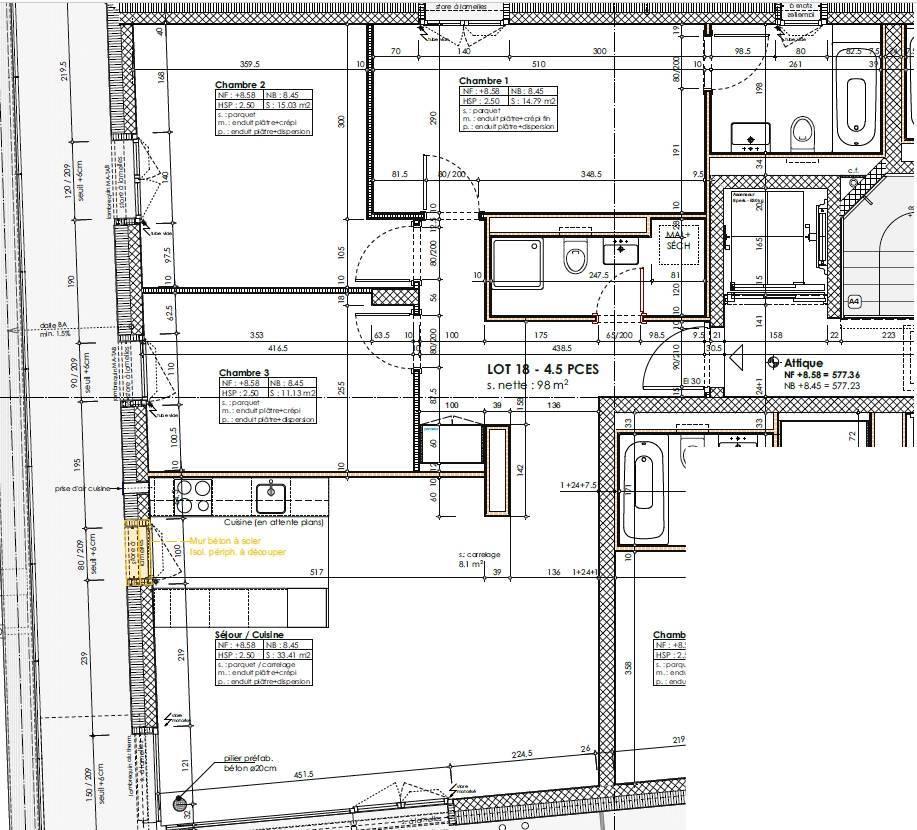
2020: Attico moderno con ascensore.

Réf 52892

4.5 locali

3 Camere

1 Bagno

122 m²

(LOTTO N° A18)

Ultimo lotto in vendita: visita remota a 360° disponibile!
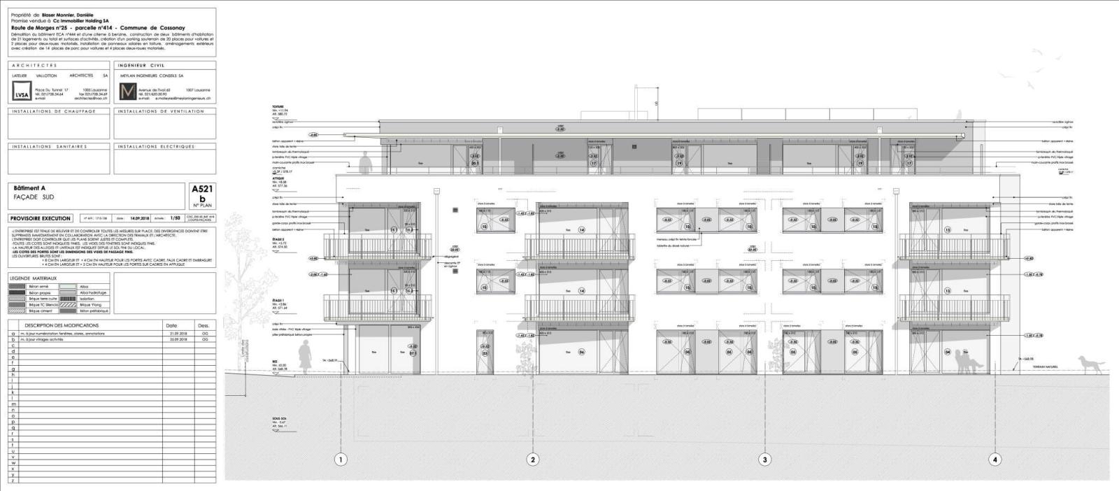
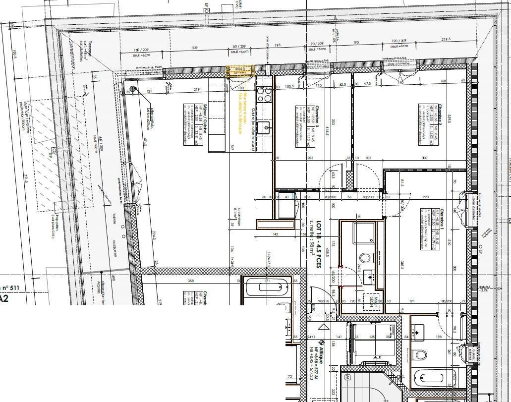
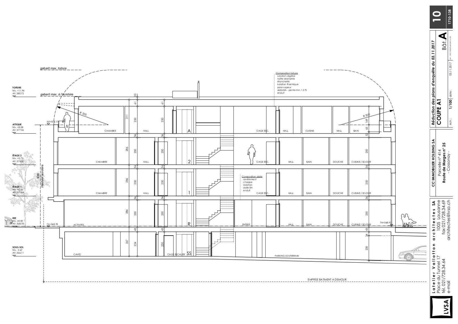
Magnifico attico nuovo di 4,5 locali (nel timpano dell'edificio, quindi incrociato e aperto su 3 lati), di buona qualità e di nuova costruzione (consegna entro settembre 2020!) con ampio terrazzo Sud/Ovest e vista sulla campagna.
Sono già state fatte delle scelte per rispettare le scadenze, utilizzando con attenzione tutti i confortevoli budget stanziati per questo progetto. Inoltre, anche la zona soggiorno/cucina ha beneficiato di una plusvalenza di 20.000,- come bonus rispetto ai budget iniziali previsti (offerti nel prezzo di vendita).

Questo appartamento dispone di due posti auto: uno coperto per 35.000.- ed uno scoperto per 15.000.-, in aggiunta al prezzo dell'appartamento.
- Vicino alla scuola, ai negozi, agli autobus e soprattutto alla stazione CFF (Losanna/Yverdon).

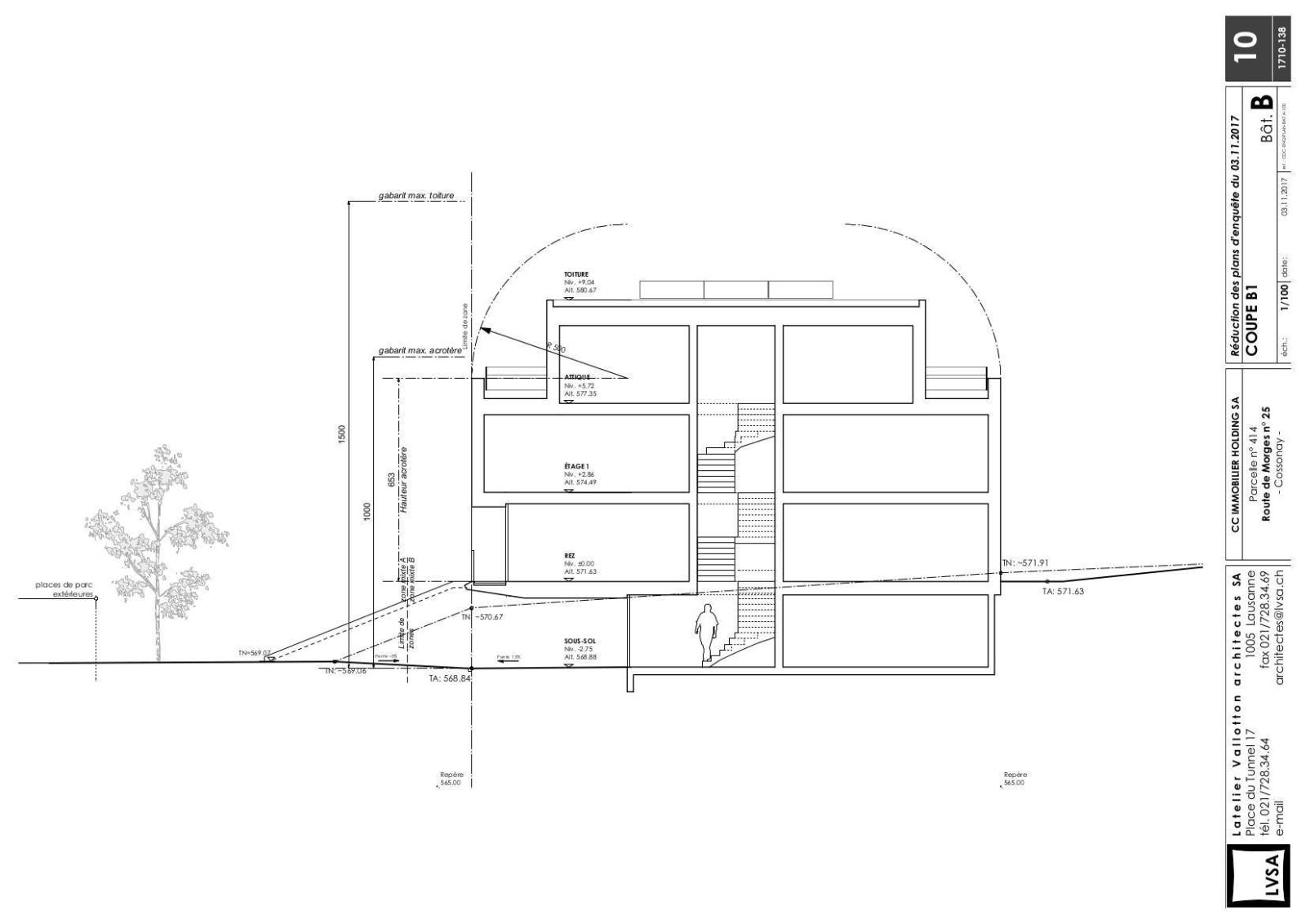
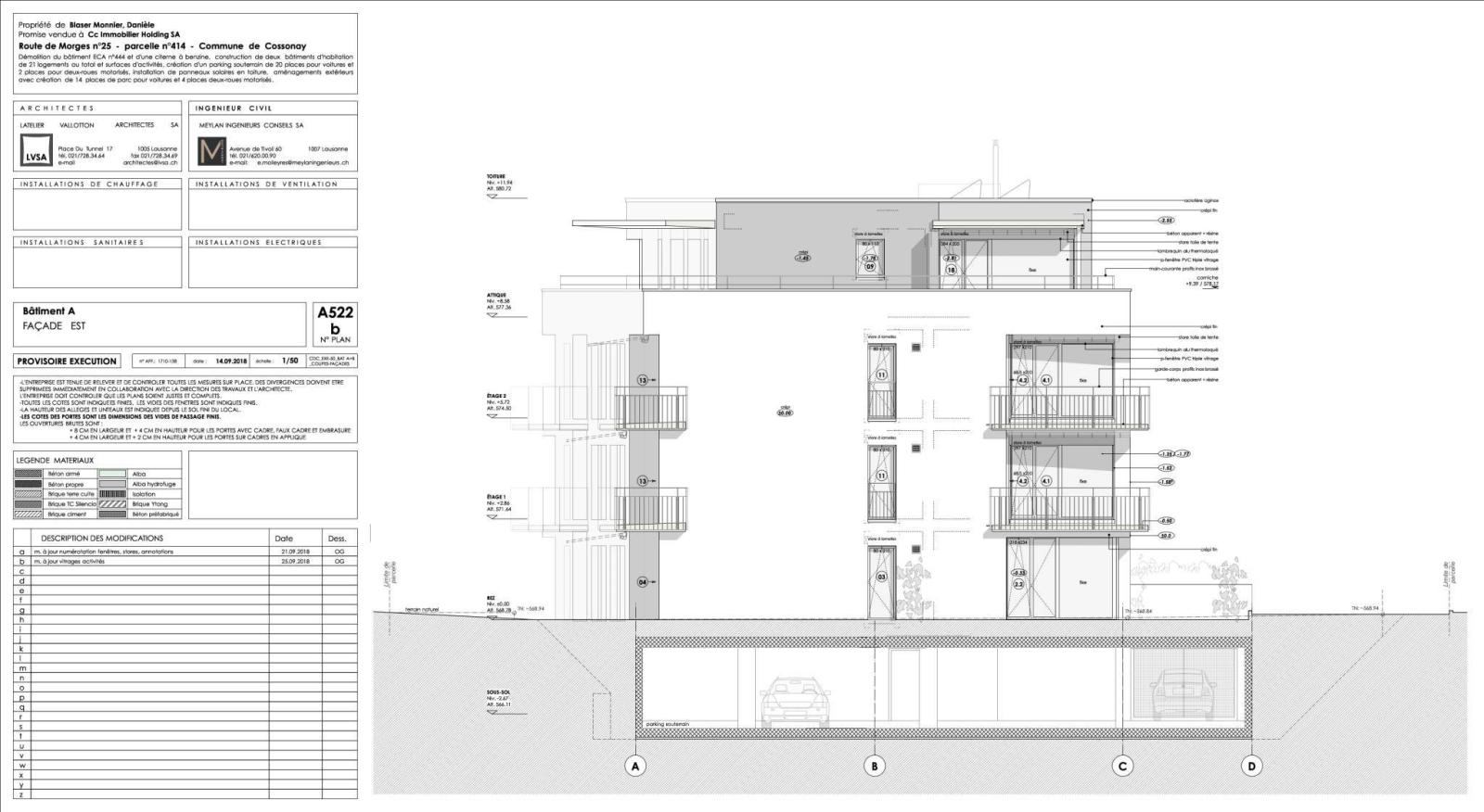
- Il progetto tiene conto degli orientamenti, degli spazi visivi e dei vincoli del luogo per definire le diverse tipologie, che vanno da 2,5 a 4,5 locali. Tutti gli appartamenti dispongono di balconi prevalentemente esposti a sud. Attici con ampi terrazzi coronano ciascuno dei due corpi di fabbrica.
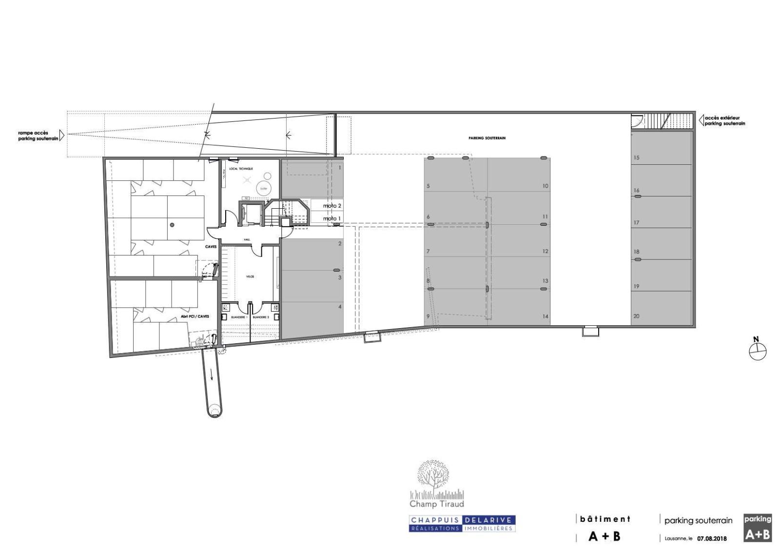
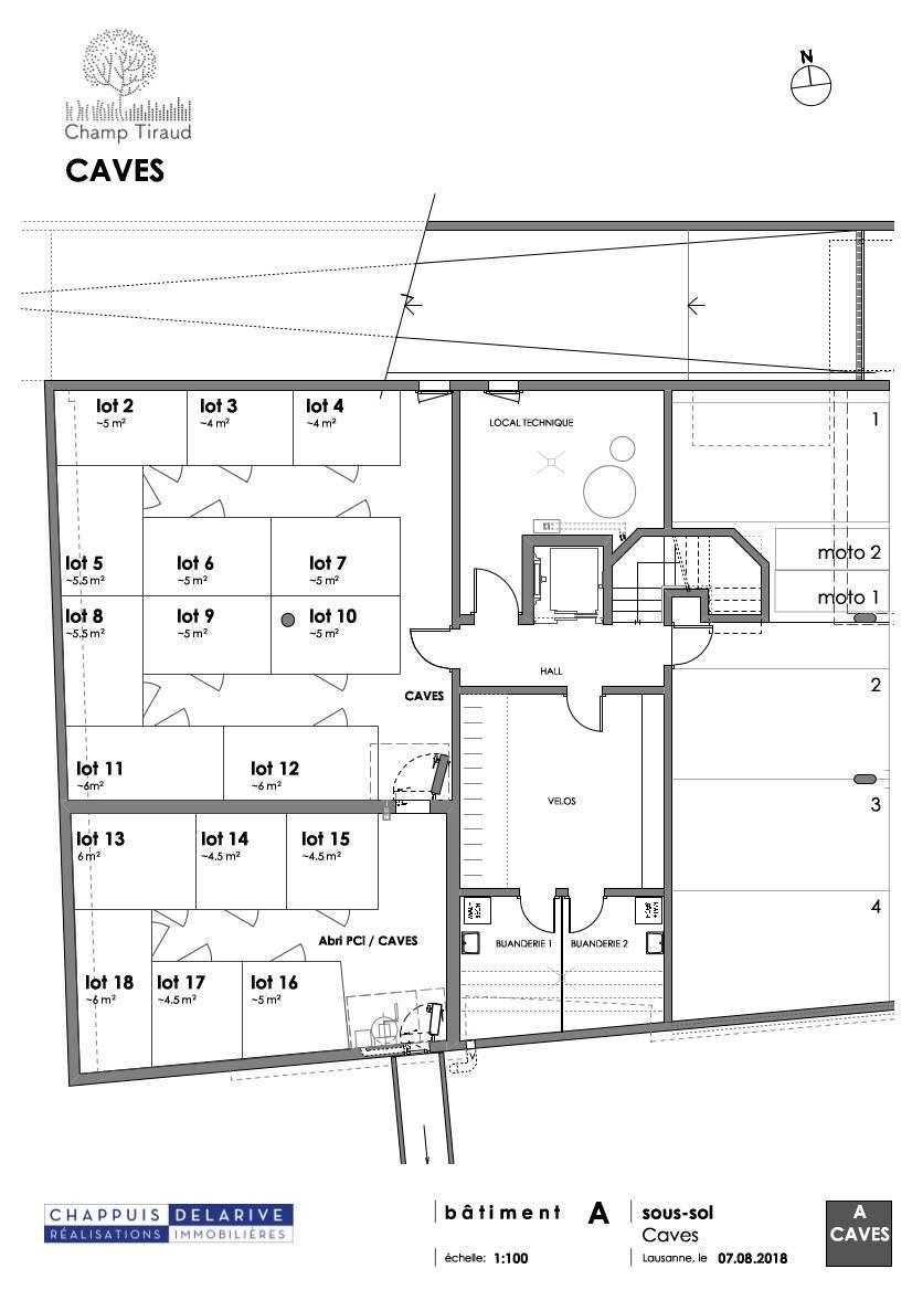
Il parcheggio interrato è accessibile direttamente dal piano interrato dell'edificio A e tramite scala esterna per l'edificio B con ulteriori posti auto esterni.

- Aree verdi con alberi e un parco giochi animano lo spazio tra i due edifici.

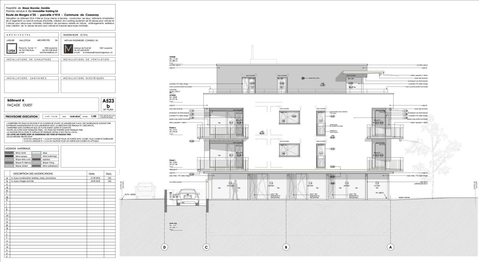
- I tetti verdi piani integrano pannelli fotovoltaici e solari termici per garantire la produzione di elettricità, calore e acqua calda sanitaria che rientra in un approccio di energia rinnovabile. La scelta dei serramenti e dei materiali delle facciate agisce passivamente in questa direzione.

- Le grandi vetrate nei soggiorni e la scelta delle balaustre dei balconi conferiscono una certa trasparenza e garantiscono quindi una buona luce.

- L'architettura contemporanea dell'insieme è sobria con scelte cromatiche contrastanti tra i solai e i solai. La scelta dei materiali, come il cemento pulito, per i balconi e parte delle superfici delle attività si abbina armoniosamente alle ringhiere in acciaio inossidabile e alla trama delle facciate in intonaco fine.

Particolare cura è stata posta nella progettazione di questo set per coniugare estetica e funzionalità.

Caratteristiche della proprietà

Tipo :

Appartamenti

Camere :

4.5

Piano :

Attica

Camere :

3

Bagni :

1

Balcone(i) :

1 (48 m²)

Parcheggi :

Superficie abitabile :

98 m²

Superficie appesantita :

122 m²

Disponibilità :

Sur demande

Anno di costruzione :

2020

Esposizione :

Sud Ovest

Posizione della proprietà

ALTRE PROPRIETÀ NELLE VICINANZE

Casa padronale del XV secolo situata su 27.000 m²
Campagne

Condividi

Casa/villa

SÉVERY • Prestige

Prezzo su richiesta

13.0 locali

7 Camere

1300 m²

Appartamento atipico dai volumi generosi

Giro a 360°

Condividi

Appartamenti

MORGES

CHF 965'000.-

5.5 locali

2 Camere

334 mq

Magnifica residenza del XIX secolo ristrutturata

Condividi

Casa/villa

MONTRICHER

CHF 4'850'000.-

15.0 locali

4 Camere

800 mq

Scopri la rivista BARNES