Ritorno alla merce

Casa/villa Da 12 locali, Lonay, Vaud

Domaine "Le Crêt Noé" - Dimora dal fascino accattivante!

Réf 55674

12.0 locali

9 Camere

7 Bagni

600

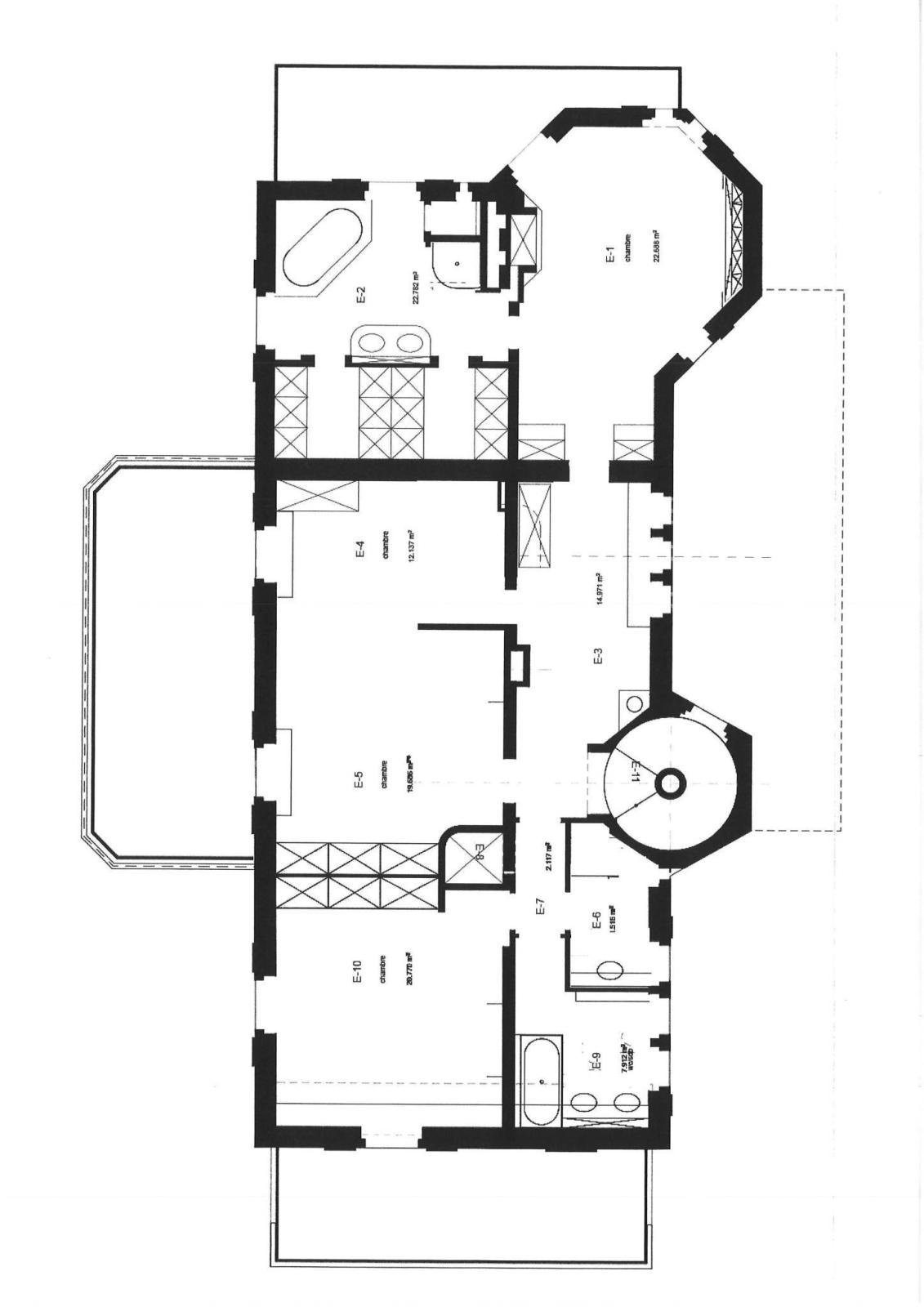
- Una Maison de Maître di grande fascino e prestigio di mq. 600 mq di superficie abitabile, più 200 mq di seminterrato, moderno e in perfette condizioni, con stanze spaziose con soffitti alti e molta luce, collegate in fila e con vista mozzafiato. Un paradiso per famiglie di tanto prestigio quanto di rara bellezza, che gode da ogni parte di questa splendida vista sul Lago di Ginevra e sul Monte Bianco.

- Situato nel cuore di un parco di 3.700 m², magnificamente boscoso con bellissime specie, tanti angoli da sogno, una serra, una casetta da gioco per bambini, una casa sull'albero, una sabbiera in pietra, un trampolino, in breve, il sogno di tutti, senza vista à-vis, e quindi di un'intimità rara e preziosa.

- Costruito nel 1951 per un banchiere-pittore vodese, "Le Crêt Noé" è stato ampliato due volte da Nicolas Büchler, architetto, attuale proprietario, che ha aggiunto nel 1994 il pergolato d'ingresso a nord, il grande soggiorno a sud, la sala esagonale torre ad Ovest nonché la spianata della piscina con i suoi padiglioni estivi, l'appartamento di servizio e le due fontane della serra, e poi nel 2006 essenzialmente il 2° piano con la sua grande copertura 'oggi delimitata da due punti in una cornice attico a l'Oriente e l'Occidente.

- Tecnicamente Crêt Noé è all'avanguardia nel comfort, beneficia del riscaldamento tramite pompa di calore geotermica che distribuisce il calore sia attraverso il terreno che attraverso i radiatori. La casa è cablata tramite Ethernet ad alta velocità, dotata di un sistema audio Revox, di un sistema di allarme e il suo cancello elettrico è collegato tramite citofono ad ogni piano. L'illuminazione esterna è dotata di rilevatori di presenza. L'illuminazione del giardino è controllata da telecomandi e l'irrigazione è automatizzata. Da notare il tetto sovracoibentato, concepito come due distinte strutture portanti sovrapposte, dotato di ferramenta di rara qualità interamente in rame.


Selezione preferita BARNES Morges


Caratteristiche della proprietà

Tipo :

Casa/villa

Camere :

9

Bagni :

7

Superficie abitabile :

600 m²

Superficie del jardino :

3769 m²

Disponibilità :

Sur demande

Anno di costruzione :

1951

Esposizione :

Sud

Posizione della proprietà

ALTRE PROPRIETÀ NELLE VICINANZE

Casa padronale del XV secolo situata su 27.000 m²
Campagne

Condividi

Casa/villa

SÉVERY • Prestige

Prezzo su richiesta

13.0 locali

7 Camere

1300 m²

Appartamento atipico dai volumi generosi

Giro a 360°

Condividi

Appartamenti

MORGES

CHF 965'000.-

5.5 locali

2 Camere

334 mq

Magnifica residenza del XIX secolo ristrutturata

Condividi

Casa/villa

MONTRICHER

CHF 4'850'000.-

15.0 locali

4 Camere

800 mq

Scopri la rivista BARNES