Ritorno alla merce

Casa/villa Da 6 locali, Lonay, Vaud

Villa indipendente - Un'opportunità rara

Réf 79892

6.0 locali

3 Camere

2 Bagni

215 mq

CHF 2'590'000.-

Questa proprietà sorge su un terreno di circa 1.600 m², nel cuore della zona residenziale più tranquilla di Lonay. Situata ai margini del paese, gode di una notevole tranquillità, pur rimanendo vicina ai servizi e all'accesso a Morges.

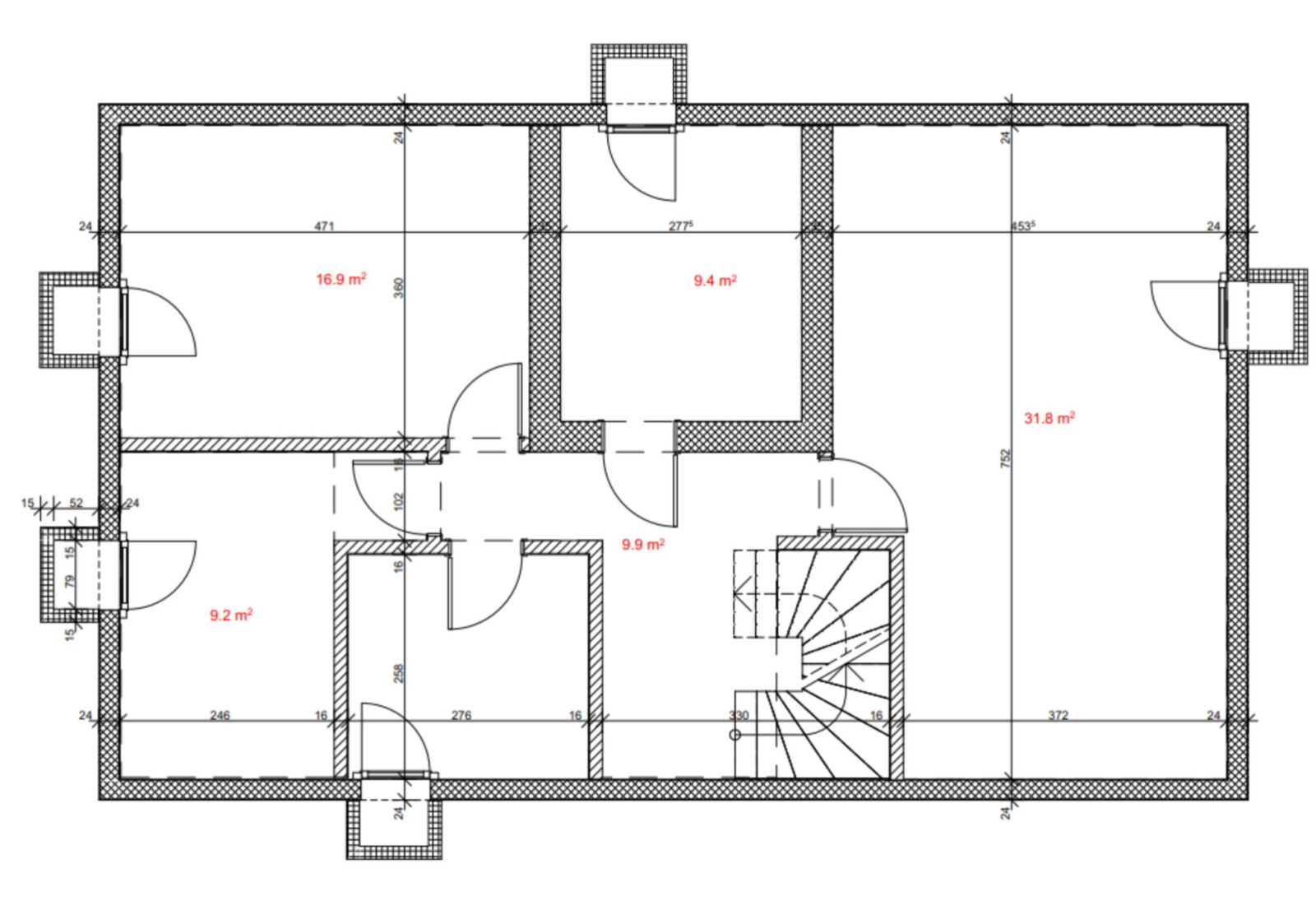
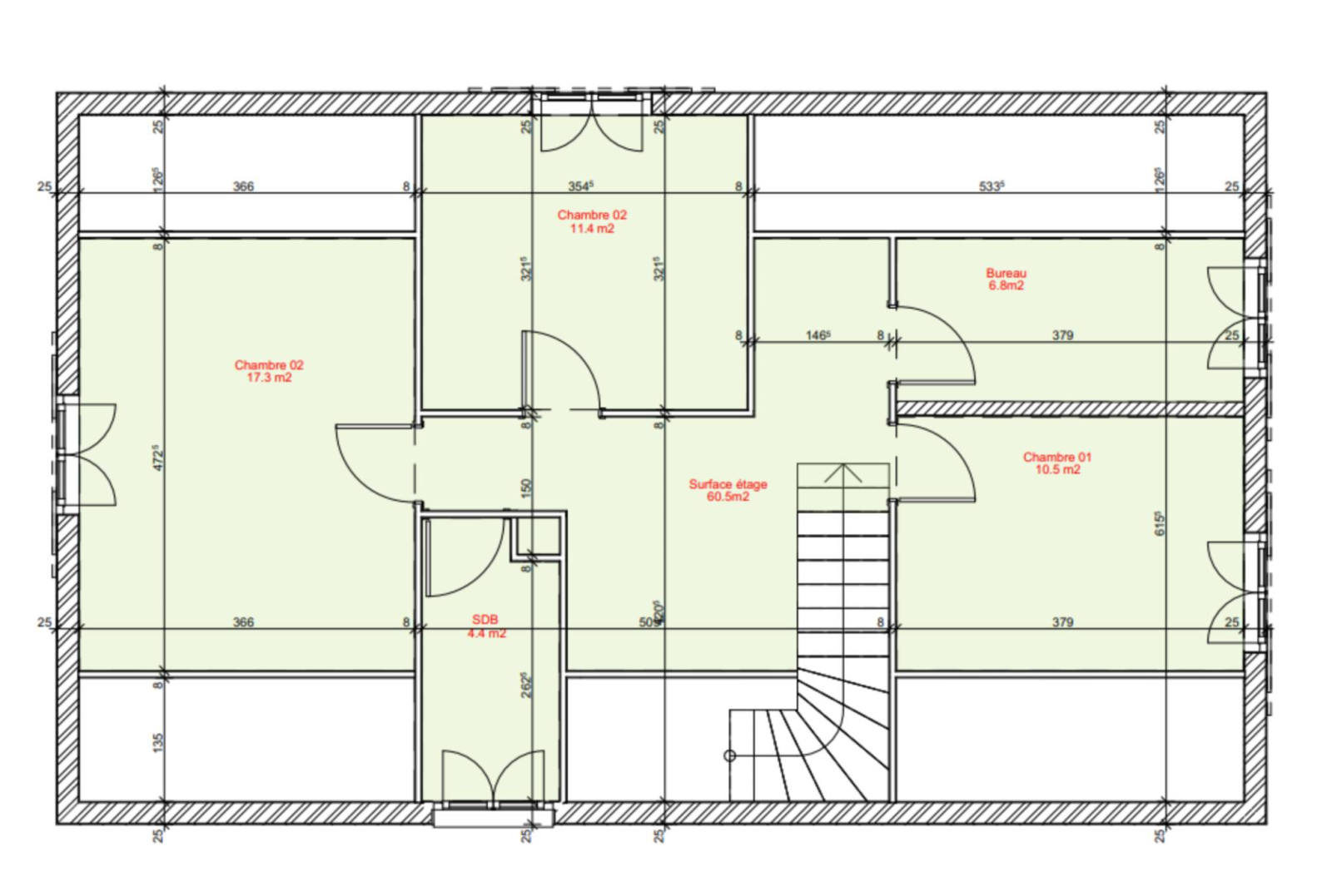
La villa offre circa 150 m² di superficie abitabile per una superficie totale utilizzabile di quasi 230 m². Grazie alle generose dimensioni del terreno e del lotto, un progetto di ampliamento consentirebbe di raggiungere una superficie abitabile totale di circa 525 m², offrendo un eccezionale potenziale di sviluppo: creazione di un'ulteriore unità abitativa, ampliamento familiare, realizzazione di uno spazio professionale o persino la creazione di un immobile di prestigio.

Il giardino, di circa 1.400 m², è uno dei punti di forza della proprietà. Le sue ampie dimensioni consentono numerose configurazioni all'aperto, garantendo al contempo un'eccezionale privacy in un ambiente verdeggiante.

La casa è dotata di pompa di calore aria/acqua, garage indipendente e seminterrato di circa 80 m², ideale come ripostiglio, officina o spazio polifunzionale.

Lonay è un villaggio apprezzato per la sua atmosfera accogliente e l'ambiente di vita privilegiato, situato vicino a Morges. La fermata dell'autobus, a meno di 50 metri di distanza, facilita gli spostamenti quotidiani verso scuole, negozi e principali infrastrutture.

Grazie alla sua posizione privilegiata, alla qualità dell'ambiente circostante e al notevole potenziale edificabile, questa proprietà rappresenta una rara opportunità per un progetto su misura, sia esso destinato a una famiglia, alla valorizzazione del patrimonio storico o al miglioramento del valore immobiliare.

Caratteristiche della proprietà

Tipo :

Casa/villa

Prezzo di vendita :

CHF 2'590'000.-

Camere :

6

Camere :

3

Bagni :

2

Superficie abitabile :

150 m²

Superficie del jardino :

1590 m²

Superficie utile :

215 m²

Superficie appesantita :

150 m²

Disponibilità :

Sur demande

Anno di costruzione :

1966

Posizione della proprietà

ALTRE PROPRIETÀ NELLE VICINANZE

Magnifica residenza del XIX secolo ristrutturata

Condividi

Casa/villa

MONTRICHER

CHF 4'850'000.-

15.0 locali

4 Camere

800 mq

Esclusivo attico con giardino privato di 650 m²

Giro a 360°

Condividi

Appartamenti

BUSSY-CHARDONNEY

CHF 1'295'000.-

5.5 locali

4 Camere

174 m²

Proprietà di carattere del XVI secolo

Condividi

Casa/villa

VUFFLENS-LE-CHÂTEAU

CHF 3'750'000.-

12.0 locali

3 Camere

1 160 mq

Scopri la rivista BARNES