Ritorno alla merce

Casa/villa Da 6 locali, Troinex, Genève

ULTIMA OPPORTUNITÀ - Le Parc des Crêts - Luminosa villa contemporanea sul frontone ovest - Villa_B2-42

Réf 56497

6.0 locali

4 Camere

2 Bagni

265 mq

Residenza d'eccezione alle porte della città, immersa in un parco di oltre 68.000 m2. Tranquillità assoluta garantita dalla totale assenza di traffico di superficie.
Vicinanza immediata ai trasporti pubblici, nonché a negozi e scuole nel cuore del villaggio di Troinex.

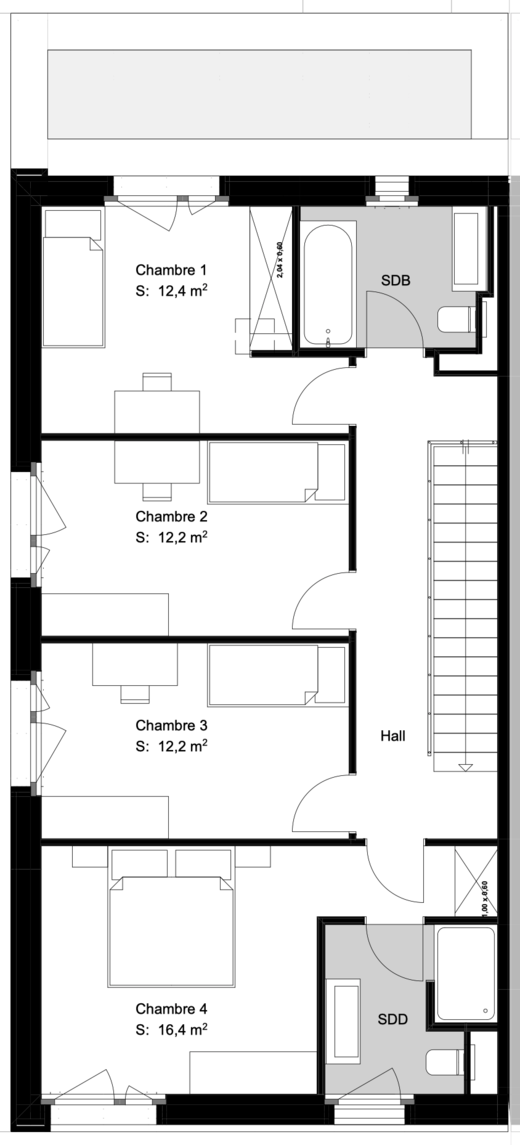
Questa luminosa villa contemporanea a capanna esposta a sud-ovest offrirà una superficie lorda di 184,8 m2 a cui si aggiungono 81 m2 lordi di seminterrato.
Al piano terra offre un ingresso con armadi, un bagno per gli ospiti, una bella cucina con isola pranzo centrale, un luminoso soggiorno/sala da pranzo che si apre sulla terrazza e sul giardino.
Al primo piano, una master suite con guardaroba e annesso bagno con doccia/wc, 3 camere da letto per bambini e un bagno/wc.
Al piano seminterrato un'ampia sala giochi con soffitto a volta, una lavanderia, una cantina, un ripostiglio e un corridoio che dà accesso al parcheggio sotterraneo dove si trovano i 2 box del valore di CHF 120.000.- oltre al prezzo di vendita .

All'esterno un ricovero privato per biciclette/attrezzi da giardino, un terrazzo di 28,6 mq ed un giardino di 147,1 mq.


https://www.parcdescrets-troinex.ch/

Inoltre, questo progetto soddisfa gli standard THPE, il che implica un vantaggio ecologico ed economico sul consumo energetico e un'esenzione dall'imposta sulla proprietà per 20 anni.

Caratteristiche della proprietà

Tipo :

Casa/villa

Camere :

6

Camere :

4

Bagni :

2

Terrazze :

Parcheggi :

Superficie abitabile :

184.8 m²

Superficie utile :

265.3 m²

Disponibilità :

Sur demande

Anno di costruzione :

2023

Esposizione :

Sud

Posizione della proprietà

ALTRE PROPRIETÀ NELLE VICINANZE

Incantevole casa da ristrutturare con vista lago

Condividi

Casa/villa

COLOGNY

CHF 9'500'000.-

8.0 locali

3 Camere

350 m²

Magnifico loft con terrazze e giardino

Condividi

Appartamenti

TROINEX

CHF 2'690'000.-

6.0 locali

4 Camere

181 m²

Spazioso attico duplex di 235 m² completamente ristrutturato

Condividi

Appartamenti

BERNEX

CHF 2'150'000.-

9.0 locali

5 Camere

235 m²

Scopri la rivista BARNES