Questa magnifica villa a capanna dalle linee contemporanee offre più di 360 m² di spazio utile distribuito su 3 livelli.
Situato su un bellissimo e tranquillo terreno di 604 m², vi sedurrà con le sue finiture di alta qualità, la sua luminosità e i suoi volumi.
Il piano terra della superficie di circa 108 mq è così composto:
L'ingresso con guardaroba conduce ad un'ampia e luminosa cucina attrezzata con isola centrale.
Quest'ultimo si apre sul soggiorno/sala da pranzo con grandi vetrate esposte a sud che offrono un soleggiamento ottimale per tutto il giorno.
Su un unico livello, la terrazza e il giardino sono direttamente accessibili attraverso il soggiorno e la camera da letto. Una camera da letto con guardaroba e bagno privato con doccia.
All'ingresso sono presenti anche servizi igienici per i visitatori con lavamani.
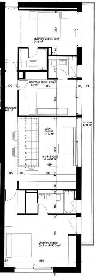
Il primo piano con una superficie di quasi 130 mq utili reception: Un soggiorno notte con armadi
Una suite con armadi e bagno/doccia/wc adiacente.
Una suite con armadi e bagno/wc adiacente. Una suite con armadi e bagno/wc adiacente. Le tre camere hanno accesso ad un terrazzo di 17 mq che corre lungo la facciata est.
Il seminterrato di oltre 120 m2 avrà un pozzo di luce naturale:
Una grande sala giochi che beneficia di una bella luce.
Una sala cinematografica
Ampia sala fitness e bagno/WC. Completano il piano una lavanderia/locale tecnico ed una cantina.
Esterni: Una terrazza coperta estesa da un piacevole giardino verde, silenzioso e riparato dalla vista, oltre a un rifugio privato, una cucina estiva e 2 posti auto esterni completano perfettamente il pacchetto.
Scopri il sito dedicato al progetto: www.cedre-bleu.ch