Ritorno alla merce

Terra, Saint-Légier-La Chiésaz, Vaud

Terreno edificabile

Réf 61874

366 mq

Terreno edificabile, non edificato, situato in una zona tranquilla, vicino ai servizi e con una magnifica vista.

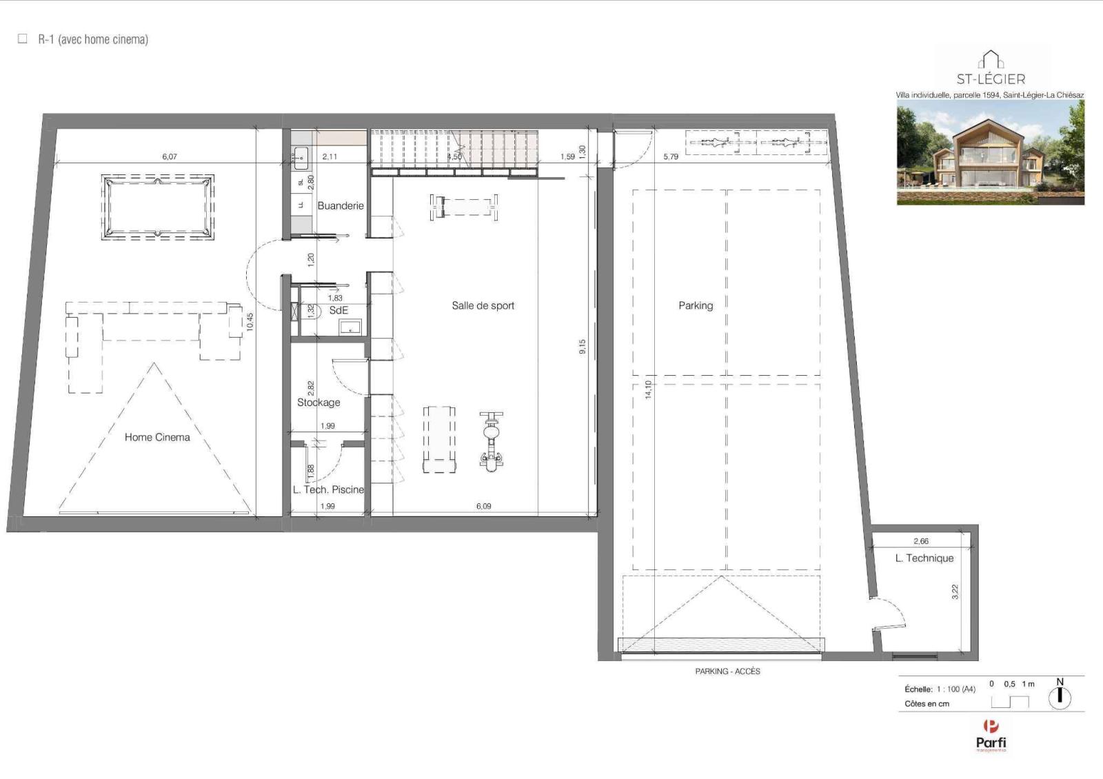
È stato completato il progetto per una villa indipendente ed è stato rilasciato il permesso di costruire.

Gli elementi sottostanti sono tratti dai regolamenti comunali:

COS secondo la norma 0.12, ovvero 183 m2 a terra.

Altezza massima delle facciate 6 m sulla piastra di parete.

Numero di livelli consentiti:
Se la superficie è superiore a 80 m2, il numero di livelli è limitato a due:
- due sotto la sabbiera e senza soffitta abitabile o
- uno sotto la piastra a muro e soffitta abitabile.

Numero massimo di alloggi;
- Due

Distanza dai confini 6 m dalle facciate non principali 8 m dalla facciata principale
Il COS (coefficiente di occupazione del suolo) corrisponde al rapporto tra la superficie del terreno occupata dagli edifici e la superficie del lotto.

Considerata la superficie condivisa nella zona della villa, pari a 1.521 m2, la superficie lorda abitabile
(determinata in base agli elementi di cui sopra) è di 366 m2 mentre la superficie massima del pavimento (determinata in base al COS) è di 183 m2.

Gli elementi sopra menzionati consentirebbero, ad esempio, la costruzione di una grande villa con un volume complessivo di 1.922 m3. La sua superficie netta sarebbe quindi (366 m2 x 0,90 deducendo le pareti) = 329 m2.

Il terreno è edificabile con un permesso valido.

Caratteristiche della proprietà

Tipo :

Terra

Superficie del jardino :

1521 m²

Superficie utile :

366 m²

Disponibilità :

Sur demande

Esposizione :

Est

Posizione della proprietà

ALTRE PROPRIETÀ NELLE VICINANZE

Sontuosa villetta con piscina e vista mozzafiato sui Dents-du-Midi

Condividi

Casa/villa

VILLARS-SUR-OLLON

CHF 4'500'000.-

7.0 locali

5 Camere

306 mq

Unico e superbo duplex di 4,5 stanze al Marina

Condividi

Appartamenti

BOUVERET

CHF 895'000.-

4.5 locali

3 Camere

151.1 m²

Villa doppia di 5,5 locali, con vista panoramica sul lago e sulle Alpi!

Condividi

Casa/villa

BLONAY

CHF 1'590'000.-

5.5 locali

3 Camere

210 mq

Scopri la rivista BARNES